Casa Broker Di Maravalle Nevio Luciano
Locale commerciale in vendita a San Benedetto del Tronto
San Benedetto del Tronto
Zona: Centro - via Calatafimi
Tratt. riservata
#370 mq
#0
#1
Cod. loc205
Tratt. riservata
Classe energetica: F

Locale commerciale in vendita a San Benedetto del Tronto

Centro - via Calatafimi
370 mq
1
Descrizione

Rif. loc205
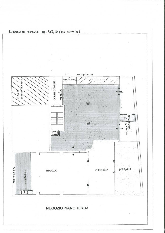
S. Benedetto del Tronto, zona centralissima, Casa Broker Immobiliare propone in Vendita Locale commerciale per molteplici attività di circa 370mq al piano terra. L'ingresso con un'ampia vetrina affaccia su strada di intensissimo traffico, antistante al locale c'è un ampio parcheggio.
L'immobile è ottimo anche per aziende in franchising nel settore alimentare, retail e abbigliamento, servizi e consulenza, e nel settore bancario-finanziario.

Caratteristiche
Scopri le caratteristiche di questo immobile
Nelle vicinanze
Servizi e infrastrutture della zona
Contattaci


Alcuni immobili che potrebbero interessarti
Locale commerciale in vendita a San Benedetto del Tronto
in Vendita
San Benedetto del Tronto
Zona Agraria
Tratt. riservata
Locale commerciale in vendita a San Benedetto del Tronto
Cod. loc10
Porto d'Ascoli, zona Agraria, Casa Broker Immobiliare propone in vendita locale commerciale dell'anno 2000 posto al piano terra di...
Dettagli
Locale commerciale in vendita a San Benedetto del Tronto
in Vendita
San Benedetto del Tronto
Ragnola
Tratt. riservata
Locale commerciale in vendita a San Benedetto del Tronto
Cod. loc1335
San Benedetto del Tronto, zona Ragnola di Porto d'Ascoli, Casa Broker propone in vendita ampio locale commerciale di circa 900mq. sviluppato...
Dettagli
Locale commerciale in vendita a San Benedetto del Tronto
in Vendita
San Benedetto del Tronto
Strada Statale 16
Tratt. riservata
Locale commerciale in vendita a San Benedetto del Tronto
Cod. loc135
Rif. loc135 Porto d'Ascoli centro, direttamente sulla Strada statale 16, Casa Broker immobiliare propone in vendita immobile con destinazione...
Dettagli
Locale commerciale in vendita a San Benedetto del Tronto
in Vendita
San Benedetto del Tronto
Porto d'Ascoli
€ 400.000
Locale commerciale in vendita a San Benedetto del Tronto
Cod. loc416
Rif. Loc 416Poro d'Ascoli, zona centralissima e su strada intenso traffico, l'agenzia immobiliare Casa Broker propone in vendita locale...
Dettagli
Ultimo aggiornamento 18/03/2026
×
Codice
Contratto
Scegli dove cercare
Tipologia - multiscelta
Prezzo


Totale mq


Locali minimi
Bagni minimi
Camere minime
Altre opzioni - multiscelta